
| 一、概述 | ||||||||||||||||
| 1.产品特点 KBG-315/6YZ(或KBG-200/6YZ)矿用隔爆型移动变电站用高压真空开关用作移动变电站高压侧开关,主体是6KV真空断路器,是高压负荷开关的新型替代产品,电动分合闸,也可以实现远距离分、合闸操作,控制灵活方便,使用微机保护电路,更加安全可靠。由液晶显示屏采用汉字显示当前状态,使用者能够更加直观和方便的了解及操作本开关。 2.主要用途 本高压真空开关适用于有瓦斯及煤尘爆炸危险的矿井中,作为移动变电站高压侧开关,可以与各种型号的低压侧开关或低压保护箱配套使用。本开关采用微机型保护电路,实现对负载的过载、短路、欠压的稳定可靠保护,由压敏电阻实现对主电路的过电压保护。 3.品种、规格 额定电压 6KV 额定电流 200A、315A 4.型号的组成及其代表意义 |
||||||||||||||||
![]() |
||||||||||||||||
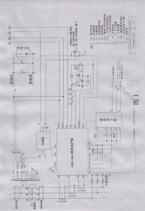
| 5.使用环境条件 a. 海拔高度不超过1000m; b. 周围环境温度 -5℃~+40℃; c. 周围空气相对湿度<95%(+25℃); d. 污染等级为3级;安装类别为Ⅲ类; e. 在有甲烷和煤尘爆炸危险的矿井中; f. 在没有淋水的地方; g. 无对金属和绝缘体有害的气体; h. 与垂直面的安装倾斜度不超过15度,没有强烈震动的场所。 6.对环境及能源的影响 对环境无污染,产品使用寿命长。无能源的损耗,无噪音。 7.安全 产品经国家指定部门检验合格,取得防爆合格证、安全标志证书,使用安全可靠。 二、结构特征与工作原理 1.总体结构(产品外形结构见图3) 高压真空开关由箱壳、箱门、高压电缆连接器、微机型保护单元、电流互感器、高压断路器、压敏电阻等组成。 1.1 箱体用钢板焊接加工制成,在箱壳上部设有两个吊钩,供起吊用,箱壳两端焊有接地螺栓及“ 1.2 断路器底架上装有4个轮子,可在主腔底板的轨道上推进拉出。断路器需修理或更换时,可将箱门打开,松开断路器推拉轴的两个螺栓,拉出两根延长轨道,断路器便可拉出隔爆箱外。 1.3 两侧各装有一套电缆连接器,可同另一台移变并联运行。连接器的规格有200A、315A、400A三种,出厂时安装两台200A连接器,如需要315A、400A连接器,需另订货。 1.4 箱门上设有一个显示窗,内装液晶显示器,汉字显示开关的运行状态、电压、电流、断路器的状态及各项设定参数,下部有复位(确定)、合闸、分闸( 1.5 箱门上装有微机保护组件(上有微机保护板,DC48V电源板、DC48V继电器,液晶显示板,按钮等),主腔内有高压断路器组件(包括高压断路器,控制变压器等),电流互感器,压敏电阻等。 2.工作原理(工作原理见图1) 本开关电路包括主回路、控制回路、保护回路三部分。 2.1 主回路是从外电网由三根导线经隔离装置(触头),输入断路器,再经隔离装置(触头),导电带,输入到移动变电站高压侧。 2.2 控制回路有控制电源变压器、继电器、按钮和电机合闸回路等器件组成。控制电源由外电路经电源变压器提供。 2.3 保护电路功能由微机保护和压敏电阻实现,提供过载保护、短路保护、欠压保护、过电压保护。本开关的保护电路即受本开关保护信号的控制,又受低压侧保护箱各种保护信号的控制。 过载、短路、欠压保护都是由微机型电流保护实现。本机保护是采用单片机为核心的微机型保护。液晶保护板的液晶屏有背光,表明有工作电源;自检灯闪,表明液晶显示板CPU程序正常运行;合闸灯亮,表明断路器已合闸。若主电路发生了过载、短路、欠压的情况,液晶屏用汉字显示具体状态及故障时的参数。 若有相应故障显示,则必需按“复位”按钮,使保护复位,高压开关才能合闸。 平时可通过“过流”按钮,检测微机保护的过载、短路功能是否正常。当按下“过流”按钮后,可使微机保护内部模拟送入4倍过载电流值与真实电流值的和。此时,若模拟电流大于短路整定电流值,则短路跳闸,液晶屏显示“短路跳”和短路时的电流值;若模拟电流小于短路整定电流值,则延时过载跳闸,液晶屏显示“过载跳”和过载时的电流值。 本开关的三个电流互感器分别与微机保护板上的三个微型电流互感器相连,微机通过三个微型电流互感器、A/D转换和计算,可得到三相主电路的电流值,再与过载设定值、短路设定值相比较,若大于相应的值,微机则发出命令,让保护板上的继电器动作,使高压开关的欠压线圈断电,分励线圈带电,高压开关的断路器跳闸断开主电路,同时由液晶屏汉字显示主电路的电流值、故障状态、故障电流值及跳闸时的时刻,实现过载、短路保护功能。 保护电源由微机通过A/D转换和计算,可得到主电路的电压值,再与欠压设定值比较,若小于设定值,延时保护,使高压开关跳闸,同时由液晶屏汉字显示主电路的电压值、“欠压跳”和欠压时的电压值及跳闸时的时刻,实现欠压保护功能。 过载电流保护特性如下: |
||||||||||||||||
|
||||||||||||||||
| 当负载回路发生短路时,电流为短路整定值的1.2倍时,动作时间不大于0.1s。 当主回路发生欠压时(电压≤4.4KV),欠压保护动作时间为6—10S。 2.4 保护整定 a. 过载保护整定 过载保护电流整定值为10A—Ie(开关额定电流值),步进值为10A,可根据实际负载的电流大小进行整定。 b. 短路保护整定 短路保护电流整定值为过载保护电流整定值的3—10倍,步进值为1,可根据实际负载的电流大小进行整定。 c. 欠压保护动作值出厂时已设定好(≤4.4KV),用户不需调整。 2.5 液晶显示屏的使用及参数整定方法 本开关最大特色之一是使用汉字液晶显示屏,可同时显示多项信息,使之更能彻底、直观的反映开关当前状态,易于操作。从而使操作人员能尽快上手,为企业降低人力资源消耗。 本液晶显示屏相关按钮有“确认”(整合于“复位”按钮上)、“ 如要整定显示时间、日期,则在分闸状态长按“确认”按钮,进入整定界面,长按“ 画面如下图所示: |
||||||||||||||||
|
||||||||||||||||
| 为防止无关人员误操作或随意更改本机设置,引发不必要的故障,本机支持加密操作。如图d.整定界面(1)所示,用户可进入“1”项进行密码设定,并长按“确认”按钮加锁。如下图: | ||||||||||||||||
![]() |
||||||||||||||||
如需解锁,可通过两种方法实现,(一)在整定界面,进入“1”项,输入正确密码,并长按“确认”按钮解锁。此方法适用于已知密码的工作人员,本开关正处于工作状态时,需要调整运行参数的时候。(二)若工作人员遗忘本机密码,则采用本方法解除本机密码:断开主电路电源,打开箱门,可以看到位于箱门内侧面板上的解锁开关,即前提到的“解锁”拨动开关,拨动此开关向另外一边,关闭箱门,重新送电,再次进入整定界面,则保护自动解锁。 2.6 组网通讯功能 |
||||||||||||||||
|
||||||||||||||||
| 七、安装保护装置及事故处理 1. 安装保护装置及注意事项。箱壳应可靠接地。安装好后应测试高压开关和低压保护箱(或低压开关)的各项功能。 2. 出现故障时的处理程序和方法 一般故障按正常顺序停电,紧急情况可使用“急停”按钮直接断开本级及上级开关。 八、保养、维修 1.日常维护、保养 应定期清除污垢,隔爆面应经常涂抹防锈油脂。如发现隔爆面锈蚀、电气连接接触不良、绝缘电阻严重下降等现象应及时修复。 2.运行时的维护、保养 运行时,防止滴水侵入箱壳内,及时清除箱顶落煤。 3.检修周期 用户自定。 4.正常维护程序 4.1 检查紧固隔爆面的螺栓、平垫、弹簧垫圈、螺母是否齐全和松动; 4.2 清除隔爆接合面粉尘、锈斑等,对磷化失效的隔爆面进行冷磷化处理,并将各隔爆面涂抹防锈油脂,检查隔爆接合面间隙是否≤0.3mm,不合格的隔爆面及时进行大修或更换; 4.3 检查电缆引入装置的压盘(或压紧螺母)和压板是否松动,密封圈是否合格,没接电缆的引入装置是否用密封圈、钢质堵板和金属垫圈密封; 4.4 检查保护箱接地是否可靠; 4.5 检查接线端子有无发热和松动现象,各电气连接接触是否良好; 5、长期停放时的维护、保养 长期停放时,应注意绝缘防潮、隔面防锈等;长期停放后重新使用,应对电气性能进行检测,合格后方可使用。 九、运输、贮存 1. 吊装、运输注意事项 1.1 产品起吊时,使用箱壳上的两个吊钩。 1.2 产品运输过程中,采取措施避免雨雪侵入和受潮,其倾斜度不大于30度,并无严重振动和冲击。 2.贮存条件及注意事项。 应贮存在空气流通、没有雨水侵入、不受烈日曝晒、无腐蚀性气体及无破坏绝缘气体的场所。 十、开箱及检查 用户收到保护箱后,应立即进行检查。 1.注意事项:检查时应注意保护隔爆面,防止碰伤和锈蚀。 2.检查内容 2.1 检查产品的铭牌数据与订货合同是否相符,如产品型号、额定电流、额定电压等; 2.2 检查出厂文件是否齐全; 2.3 检查包装箱内物件是否与装箱单相符; 2.4 检查各零部件是否完整无损或位移,各紧固件是否松动; 2.5 检查各隔爆面是否碰坏,隔爆接合面间隙是否合格。 3.地面验收 3.1 主电路的绝缘电阻测量; 在比较干燥的环境下,主电路的绝缘电阻应不小于100 MΩ。 3.2 主电路进行外施工频耐压试验,20KV 1min (出厂试验值的85%); 注:要将保护电路与主电路断开。 3.3 检查按钮是否灵活,保护箱是否可靠工作; 3.4 检查密封圈是否与所选电缆相适应。 十一、其他 1.质量保证、售后服务事项及联系方法等 产品在出厂后的6个月,投入运行后的3个月内,在正常的运输、贮存、安装和使用的情况下,确因产品质量问题而出现的故障,本厂负责免费保修。 产品出现质量问题请通知我厂售后服务部,联系电话: 0351-7964808。 2.其他事项 订货时应写明产品名称、型号、定购数量、特殊要求等,如矿用隔爆型移动变电站用高压真空开关、KBG-200/6YZ(微机保护型)、3台 3.备件 如需要备件,订货时应在合同中注明备件名称、数量,备件费用另计。 如KBG—6KV微机保护板(1块)、 液晶显示组件(1套)、 DC48V电源板(1块)。
|
||||||||||||||||
![]() |
||||||||||||||||
![]() |
||||||||||||||||
![]() |
||||||||||||||||
![]() |